专业的冷库工程商400-8269-609
冷库安装公司 >>新闻中心 >>库华新闻 >>
萧山一医药冷库建造安装过程
时间:2013-11-27 编辑:
医药冷库安装具体操作流程:
冷库项目安装具体操作五步曲:项目承包—项目设计—项目采购—项目施工—项目管理,下面库华制冷为您详细讲解五步曲的具体细节。
库华制冷项目承包:
分为五个小细节,从冷库费用控制—冷库进度控制—冷库质量控制—冷库合同管理—冷库安装人员组织与协调如下图所示:
库华制冷项目设计:
关于冷库设计建造项目,您或许全部了解或许了解一部份,也许您正在找一家二家甚至更多的厂商联系,听到不同的方案和价格,把有限的时间花在众多的电话邮件甚至会见约谈过程中,库华制冷提供的是一站式服务,只要告诉我们;
库华:需建造冷库的尺寸:长宽高单位米;
第二:需建造冷库的存货设计温度:深度冷冻-25℃以下冷冻冷藏-18℃保鲜冷藏0℃保鲜2℃保鲜10℃;
第三:需建造冷库的总存货量:20吨50吨100吨500吨1000吨5000吨
第四:需建造冷库的日出入货量:占总库2%5%8%10%20%
第五:需建造冷库库温的库华制冷小冷却时间:6H8H10H12H24H
第六:需建造冷库项目制冷机组的品牌厂家:艾默生谷轮德国比泽尔西克大连三洋(日本)法国美优乐法国泰康日本日立意大利富士豪美国开利意大利都灵
第七:需建造冷库项目设备国产还是进口;
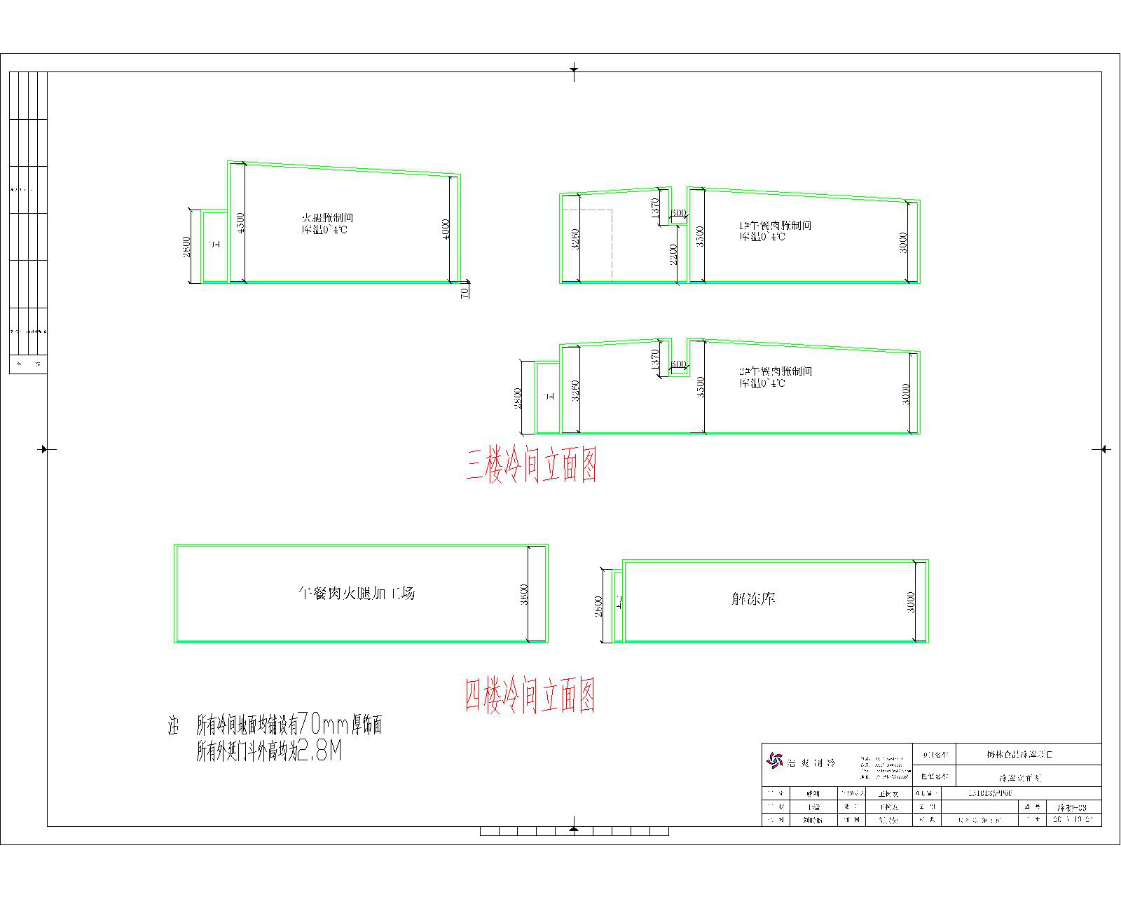
如图所示:
此图是库华制冷给某医药冷库项目设计的冷库方案图纸


库华制冷项目采购:
库华采购优势:我们与国内外好的的制冷设备厂家有着深入的合作,引进优良的技术和产品,长期稳定的采购合作模式,使得我们更加有着优势为客户提供高性价比的产品。以库华的品牌和平台,一体式的集中采购甄选,在价格和设备质量问题上比客户自身采购更加有着优势。
1.供应商管理
库华专业的设备工程人员,选配各种制冷设备,从众多供应商中选择适合客户的产品,为客户节省投资并达到项目的要求。库华对供应商进行一一考核筛选,从产品质量、供应能力、售后服务、价格因素等方面综合考虑我们的供应商团队。
2.采购其管
项目合作签约---制定采购计划---供应商生产---品质管理---交期催货---物流跟踪---交付使用---售后服务。
如图所示:
库华制冷项目施工:
库华一直以高效的团队执行力引导企业正常发展,团队分工分明,专人专职,爱岗敬业,全体员工认真在各自的岗位上,为整个库华的发展,为每一个合作的项目,认真仔细,高效严格的默默贡献着自已的力量,水滴成川洋之海,力集库华而成果。库华的发展,随着中国经济形式的逐步高涨而不断飞跃前进。库华的执行力量始终带领着库华的全体员工,向着美好的明天,不断前进。
下面是我司库华制冷给萧山某医药冷库现场安装实例:
冷库库场,安装师傅们准备卸货
此医药冷库建在一所商务写字楼13层,由于电梯小的原因,辛苦冷库安装师傅们,将库板一块块扛上楼去,
一部分库板已到场地,可以慢慢拼装;
平装底板要注意地面平整,这非常关键,如有物品及杂质,需想法办法处理,保持底板基本平整,平衡沟槽保持无杂质,拼装墙板凹凸槽要吻合,用偏心钩要锁牢,用力适中,不宜过大;
冷库墙板拼装完成,准备装顶板,在装顶板的同时也是需要先打上发泡剂,以库华冷库的密封性,制冷效果好。
在拼装每一块冷库板,都不可忽视细节,必须打上发泡剂;
顶板与墙板之间偏心钩还是一样要锁牢,这样库板拼装就基本完成;
制冷设备安装:要轻轻放置,每个底脚螺丝也要拧牢固定住,

顶部线槽安装应注意几点:
线槽安装保持横平竖直,电缆线整齐放置线槽内,线头不宜过多(方便后期维护检查),其之间的缝系适中库华制冷好,管卡固定要牢靠;
总结:安装冷库板时,严格按照图纸施工,弹线要准,直。分清库板凸凹面的走向。(不分凸凹面的话可能会导致门无法安装)每块板在拼装前一定打满发泡剂。发泡剂不能少打。每个偏心钩用内六角固定,安装时确保每个连接口牢固,缝隙不能过大,保持水平,不能出现歪斜。

扫一扫,关注库华制冷新动态
业务部 高经理:15355424256(24小时咨询)
电话:0571-87139668 | 全国服务热线:400-8269-609
Copyright © 2013-2025 浙江库华制冷设备工程有限公司
浙ICP备13023643号-2 |
浙公网安备 33010402001705号